Floor plan of department office store in auto cad file
Description
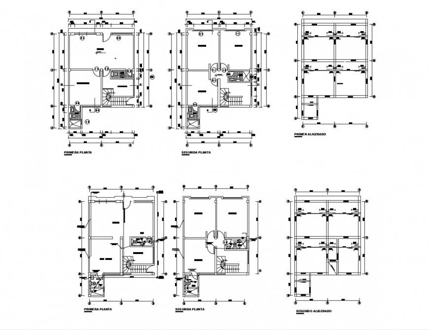
Floor plan of department office store in auto cad file its include detail of wall area distribution and office room area and washing area door position and stair detail in view of floor plan.
Uploaded by:
Eiz
Luna

